works020
里山の間(あわい)にひらく光の洞 (plan)
- 所在地:神奈川県葉山町
- 主要用途:戸建て住宅
- 工事:新築
- 工法:木造在来工法
- 階数:平屋建て
- 設計者:FUDO 三輪直樹
-

- この土地は葉山町上山口にある。
にほんの里100選に選ばれた棚田が程近くにある里山風景が残るのどかなエリアだ。
-

近隣にある「にほんの里100選」に選ばれた上山口の棚田 - 敷地は南側に平坦地と北側の傾斜地に分かれていて、元は竹林になっている。
南側には正面に農地や山の自然が広がっていて、北側は竹林の先に町や山々の遠景が見られる。
-

現地に行った際はまだ竹林が残っていた
-

現在は一部更地になっている
-

北側は竹林の先に山の景色が広がり眺望の良い立地だ
-

南側は空き地になっており、緑と空が借景になる
-

周辺はのどかな里山だ
- 現地を訪れたのは8月の暑い日だ。山の緑と空の青がこのエリアを包み込み、のどかで心地よい空気を感じながらここでの暮らしを想像した。
「自然の景観を存分に活かしつつ、里山暮らしを満喫できる家を作りたい。」
敷地は平坦な部分が十分広いので、平屋で計画しようと決めた。
-

南側からの建物外観 - 南側はエディブルガーデンにして、ハーブや野菜を植えよう。果樹も植えたい。庭から収穫した野菜を使って料理をしたい。コンポストも置いて生ゴミを土に帰し、循環する生活を目指そう。
近所の人々にふらっと寄ってもらえるように道路に面してパーゴラを設けたい。
-

ゲストルームは山の景色やエディブルガーデンなどを楽しめる - 多目的なゲストルームを設けて、友達や近所の人と食事をしたり、泊まってもらうのもいい。
北側の竹林は子供たちの遊び場になりそう。ゆくゆくはデッキや離れ小屋を設けてもいい。
里山の風景に溶け込むような家にしたい。
-

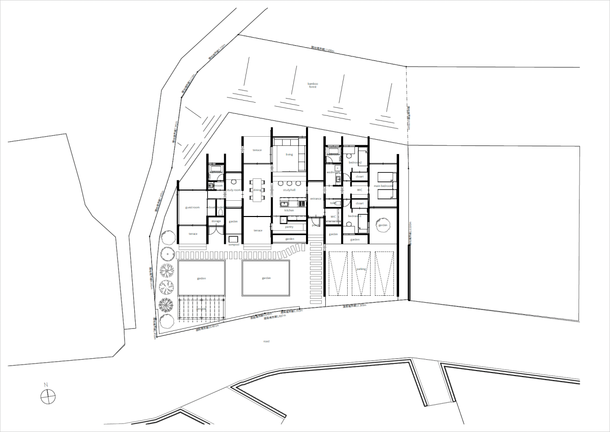
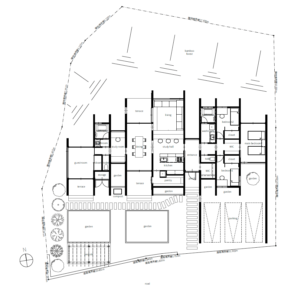
配置図 - 建物は北側の斜面の竹林を活かし、南側にエディブルガーデンのスペースを確保するため、南北の中央に配置し、東西の幅を最大限に活用した配置とした。
南北の景観を活かすため、南北に壁が貫き、その間に窓を配置する計画とした。南北に貫く壁がレンズのように明暗を絞る役割をすることで、山々の景観や周辺の景色を印象的に見せている。
-

北側からの外観 - 外観はプライベートスペース、LDK、ゲストルームを分棟形式にして、玄関ホールとスタディールームがそれぞれを繋ぐようにヴォリュームを形成している。プライベートスペースの南北の壁を延長させて南東側に駐車スペースを配置することで、一体的な建物ヴォリュームとした。
壁の仕上げは南北に貫く壁を左官仕上げとし、直行する壁を木板張り仕上げとした落ち着いた色調とした。
屋根は金属屋根で太陽光パネル一体型とした。
-

間取り図 - 部屋の配置は東側に寝室や水回りなどのプライベートなスペースをまとめ、中央にリビングダイニングキッチンを配置し、西側にゲストルームを配置した。
リビングダイニングキッチンはゆるくつながりながらもそれぞれが独立したスペースになるようにし、リビングは床を下げて、より半個室のように独立したスペースとした。
-

ダイニングから南側エディブルガーデンを望む
-

キッチンから北側を望む
-

リビングは半個室のようにくつろげるスペースに - 内装壁は外壁と同じ仕様にすることで、室内と屋外の境を和らげるようにした。
床仕上はプライベートスペースが木板張りとし、LDKやゲストルームはタイル貼り仕上とした。
-

- 居室はもちろん、廊下も含めどの部屋にも光と緑を取り込み、自然を感じられる空間だ。
※CGはイメージです。周辺の景観は実際とは異なりますので、現地をご確認ください。
-
本プロジェクトの土地は、現在エール総合不動産で販売中。
この家での暮らしのイメージが膨らんだら、一度土地を観に行こう。
葉山上山口の里山の空気と共に、この土地、家での豊かな暮らしを一緒に創造しましょう。
【物件情報】
里山担い手葉山の森暮らし | 三浦郡葉山町上山口 売地
https://yell-integrated.com/1773/



